Appartamento in Affitto a Torino
Zona: Madonna del Pilone - Sassi
Classe energetica
EP glnr: 162.85 kwh/m²
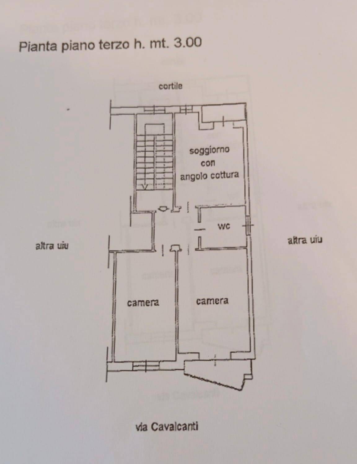
In zona comoda al centro e ben servita dai principali mezzi, servizi e al Campus Luigi Einaudi, proponiamo in Affitto un Appartamento trilocale situato al terzo piano di una palazzina senza ascensore.
L'immobile, completamente arredato, è composto da ingresso su disimpegno, cucina abitabile attrezzata, piccolo vano lavanderia, soggiorno, camera da letto e bagno finestrato. L'Appartamento gode di doppia esposizione e dispone di due balconcini paralleli, che garantiscono un'ottima luminosità. Completa la proprietà una cantina al piano interrato.
La locazione è destinata ESCLUSIVAMENTE a studenti o trasfertisti referenziati. Alla scadenza del primo contratto di quattro anni, la proprietà intende rientrare in possesso dell'immobile per uso abitativo proprio.
Soluzione ideale per chi cerca un Appartamento funzionale, ben collegato e pronto da abitare.
Tutti i dati e le planimetrie sopra riportati non costituiscono elementi né presupposti contrattuali.
Ultimo aggiornamento 13-10-2025





















