Villa Bifamiliare in Vendita a Pino Torinese
Zona: Folis
Classe energetica
In zona tranquilla ma estremamente comoda al centro del paese, proponiamo in Vendita una Villa Bifamiliare di nuova costruzione, con consegna prevista nella primavera del 2026. La posizione è ideale per chi desidera vivere nella quiete senza rinunciare alla comodità dei servizi, quali scuole, fermata del bus, biblioteca, Comune, Poste, giardini pubblici e negozi tutti raggiungibili a piedi in meno di tre minuti.
Il progetto prevede la realizzazione di due unità abitative con ingresso indipendente, giardino privato di cui circa 350 mq pianeggiante. La villa sarà in Classe Energetica A, grazie al riscaldamento a pavimento, pompe di calore, serramenti con triplo vetro; soluzioni che garantiscono un'alta efficienza energetica e il massimo comfort abitativo.
Nel dettaglio, l'unità in oggetto la prima accedendo dal cancello comune sarà così composta:
Al piano terra (circa 112 mq) troviamo un ingresso su un'ampia zona giorno open space con soggiorno e cucina a vista, completata da un comodo antibagno e un bagno. L'esposizione a sud e le ampie vetrate donano grande luminosità agli ambienti e permettono l'accesso diretto al giardino, perfetto per vivere l'esterno godendosi momenti di convivialità e relax.
Una scala interna conduce al piano primo (circa 80 mq), dove si sviluppa la zona notte composta da tre camere da letto, di cui una con cabina armadi, due bagni e un ampio terrazzo ideale come sfogo esterno privato.
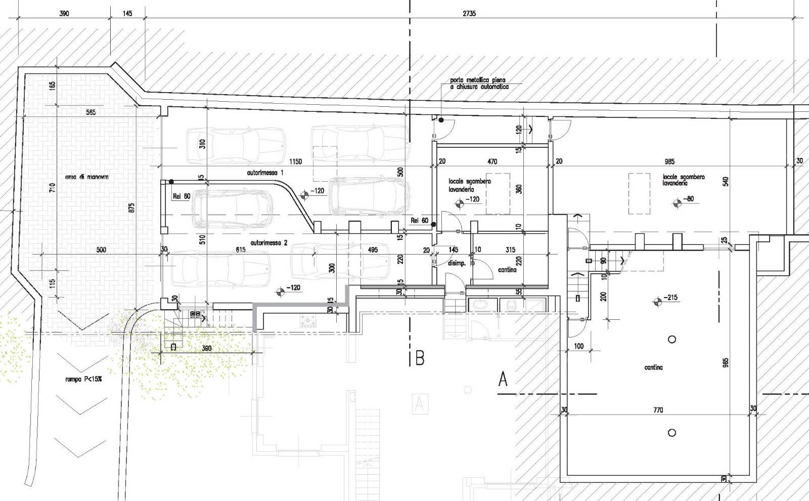
Scendendo al piano interrato (circa 80 mq), anch'esso collegato internamente, troviamo un'autorimessa doppia, una cantina e un locale sgombero/lavanderia, spazi funzionali che completano al meglio l'abitazione.
Le ville saranno consegnate chiavi in mano e sarà possibile personalizzare le finiture interne grazie a un capitolato messo a disposizione ai futuri acquirenti.
Una proposta perfetta per chi è alla ricerca di una casa moderna, efficiente dal punto di vista energetico, con ampi spazi interni e giardino privato, in un contesto riservato ma vicinissimo a tutti i servizi.
Tutti i dati e le planimetrie sopra riportati non costituiscono elementi né presupposti contrattuali.
Ultimo aggiornamento 15-07-2025















